Filonos Piraeus

Located in Piraeus, Athens’ port city, Filonos Piraeus offers a modern living experience at the heart of urban life, closely connected to the sea. With its marina, coastal promenade, cafés, and vibrant social atmosphere, Piraeus is one of Athens’ most dynamic districts for both living and investment.

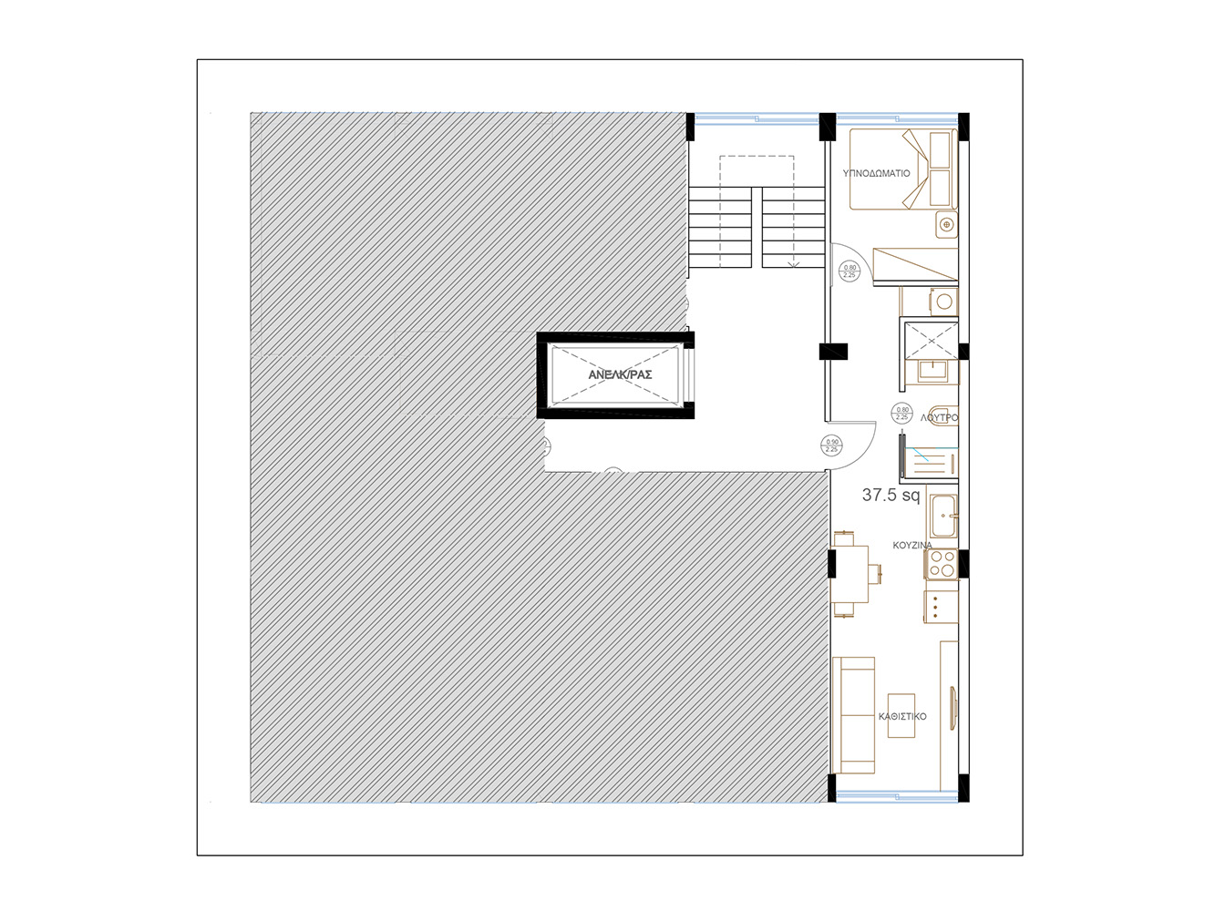
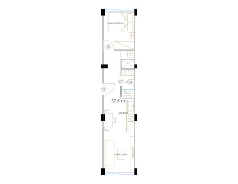
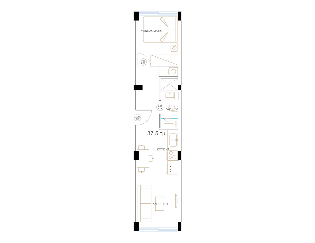
Thanks to its proximity to the Port of Piraeus, the project provides easy access to city transportation as well as the Greek islands. Metro stations, bus stops, seaside walking paths, and daily amenities are all within walking distance. Situated on the 3rd floor of an eight-storey mixed-use building, Filonos Piraeus consists of four private apartments, offering a calm and functional living environment with a limited number of residences. The apartments are delivered fully furnished and turnkey, featuring modern kitchens, smart home infrastructure, A energy class systems, and newly renovated mechanical and plumbing installations.

Eligible for the Golden Visa Program with an investment of €250,000, Filonos Piraeus represents a solid opportunity that can be considered for both residential use and investment purposes.

Project Overview

Location

Athens

Type

Residence

Plot Area

-

Capacity

4 Apartments

Project Delivery

-

Amenities

City Center, Fully Furnished, Prime Location

Contact Form